
GEWELDIG VRIJSTAANDE VILLA! ZEER HOOGWAARDIG AFGEWERKT EN UITERAARD DUURZAAM!
Uitstekend geschikt voor dubbele bewoning.
Levensloopbestendig met slaap en luxe badkamer op de begane grond.
En ook nog eens aan doorgaand vaarwater. Hier komen woonwensen op een unieke manier samen.
Deze vrijstaande villa, gelegen aan Lievenlant 20 in Zuid-Scharwoude, biedt u de ruimte om het wonen volledig naar uw hand te zetten, met twee volwaardige woonlagen die zich perfect lenen voor mantelzorg, inwonende familie of een thuiswonend studerend kind.
Daarnaast is er volop aandacht voor de toekomst, met een warmtepomp, 24 zonnepanelen en volledige vloerverwarming, waardoor u hier comfortabel én energiezuinig woont. Energielabel A++.
Kortom, een woning die niet alleen indruk maakt, maar zich aanpast aan uw manier van leven.
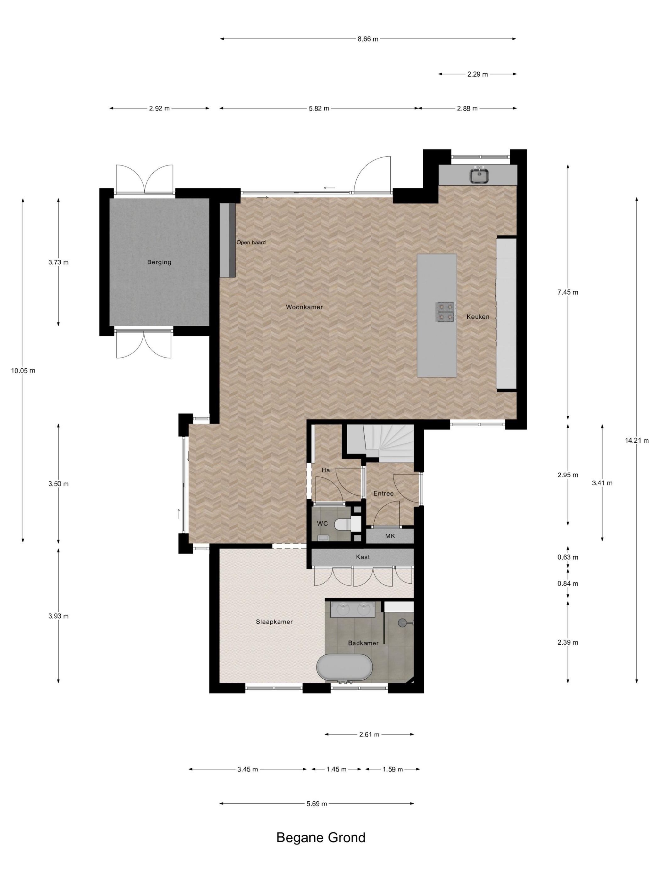
Kom binnen
Via de entree komt u binnen in een stijlvolle hal waar direct de rustige, warme sfeer van de woning voelbaar is. De afwerking is strak, de materialen hoogwaardig en zorgvuldig gekozen. Alles voelt kloppend.
De luxe hal verrast met een op maat gemaakt zitplekje, zo’n detail dat niet alleen praktisch is, maar direct karakter toevoegt. Hier vindt u tevens het moderne douchetoilet, stijlvol afgewerkt met verfijnde messing accenten die subtiel terugkomen in de woning.
Woonkamer en keuken
Wanneer u doorloopt, opent de leefruimte zich op indrukwekkende wijze. Dankzij de grote raampartijen aan zowel de achter- als zijkant valt het daglicht hier rijkelijk naar binnen. De visgraat PVC-vloer, gecombineerd met vloerverwarming, vormt een comfortabele en luxe basis.
De woonkamer is een plek waar u direct wilt zijn. De op maat gemaakte kastenwand met geïntegreerde haard trekt de aandacht, terwijl de combinatie van donkere materialen, zachte tinten en subtiele lichtlijnen zorgt voor een warme, bijna hotelachtige sfeer.
Dit is zo’n ruimte waar u vanzelf neerploft en de dag als het ware van u af laat glijden.
Aan de zijkant bevindt zich het eetgedeelte, met zicht naar buiten en een schuifpui naar het terras. Hier schuift u op een zomerse dag de pui open drinkt u uw kopje koffie in de luwte.
De zeer uitgebreide en luxe keuken is speels gescheiden door een subtiele plafondverlaging en kleurverschil, waardoor er een natuurlijke indeling ontstaat zonder dat de ruimte wordt onderbroken.
De leefkeuken zelf is royaal en strak uitgevoerd met een groot kookeiland en een uitnodigend bardeel. Hier komt u samen, voor een kopje koffie of een lange avond tafelen. Voorzien van onder andere een inductiekookplaat met geïntegreerde afzuiging, inbouw koffiemachine, klimaatkast, (combi) oven, magnetron, koelkast, vriezer met lades en Quooker, is alles aanwezig.
Aan de raamzijde zorgen op maat gemaakte zitbankjes voor een huiselijk element. Een plek waar u even neerstrijkt terwijl uw partner staat te koken en waar gesprekken vanzelf ontstaan.
De achterzijde van de woonkamer is volledig gericht op de tuin, met een geweldige harmonicadeur die volledig weggevouwen kan worden.
Slaapkamer en badkamer – begane grond
De slaapkamer op de begane grond maakt deze villa extra bijzonder. Ruim, stijlvol en voorzien van een op maat gemaakte wandkast, met directe toegang tot de walk-in closet en de badkamer en-suite.
Hier ervaart u het comfort van een privésuite, waar rust en luxe samenkomen.
De badkamer is uitgevoerd in zachte tinten en voorzien van een vrijstaand ligbad bij het raam, een dubbele wastafel en een royale inloopdouche. De messing details geven het geheel een warme, verfijnde uitstraling.
Eerste verdieping
Wat deze verdieping zo bijzonder maakt, merkt u zodra u boven komt. De trapopgang is stijlvol verlicht. Vervolgens ontvouwt zich een volwaardige tweede leeflaag. Een plek die zich moeiteloos leent voor dubbele bewoning, mantelzorg of gewoon… extra ruimte om te leven zoals u dat wilt.
De overloop geeft toegang tot een separate toiletruimte, een kast met boiler en de trap naar de tweede verdieping.
De woonkamer met open keuken is verrassend ruim en licht. Grote raampartijen zorgen voor een prettige sfeer, terwijl de visgraatvloer zorgt voor een mooie verbinding met beneden.
De keuken is uitgevoerd in een moderne, greeploze opstelling met een rustige kleurstelling en een stijlvol werkblad. Voorzien van een inductiekookplaat met geïntegreerde afzuiging, oven, diverse inbouwapparatuur en een messing Quooker. Het raam boven het werkblad zorgt voor extra licht en ventilatie.
Achter de keuken bevindt zich een comfortabele slaapkamer met walk-in closet en badkamer en-suite.
De tweede badkamer sluit naadloos aan bij de stijl beneden, met een vrijstaand ligbad, dubbele wastafel en inloopdouche. Rustig, stijlvol en compleet. De combinatie van materialen, kleuren en het daglicht dat via de ramen binnenvalt, zorgt voor een serene beleving.
Wat deze verdieping extra kracht geeft, is de flexibiliteit. Of u nu denkt aan een inwonend familielid of een eigen leefruimte voor oudere kinderen. Uiteraard kunt u deze verdieping ook weer inrichten met meerdere slaapkamers als dat uw wens is.
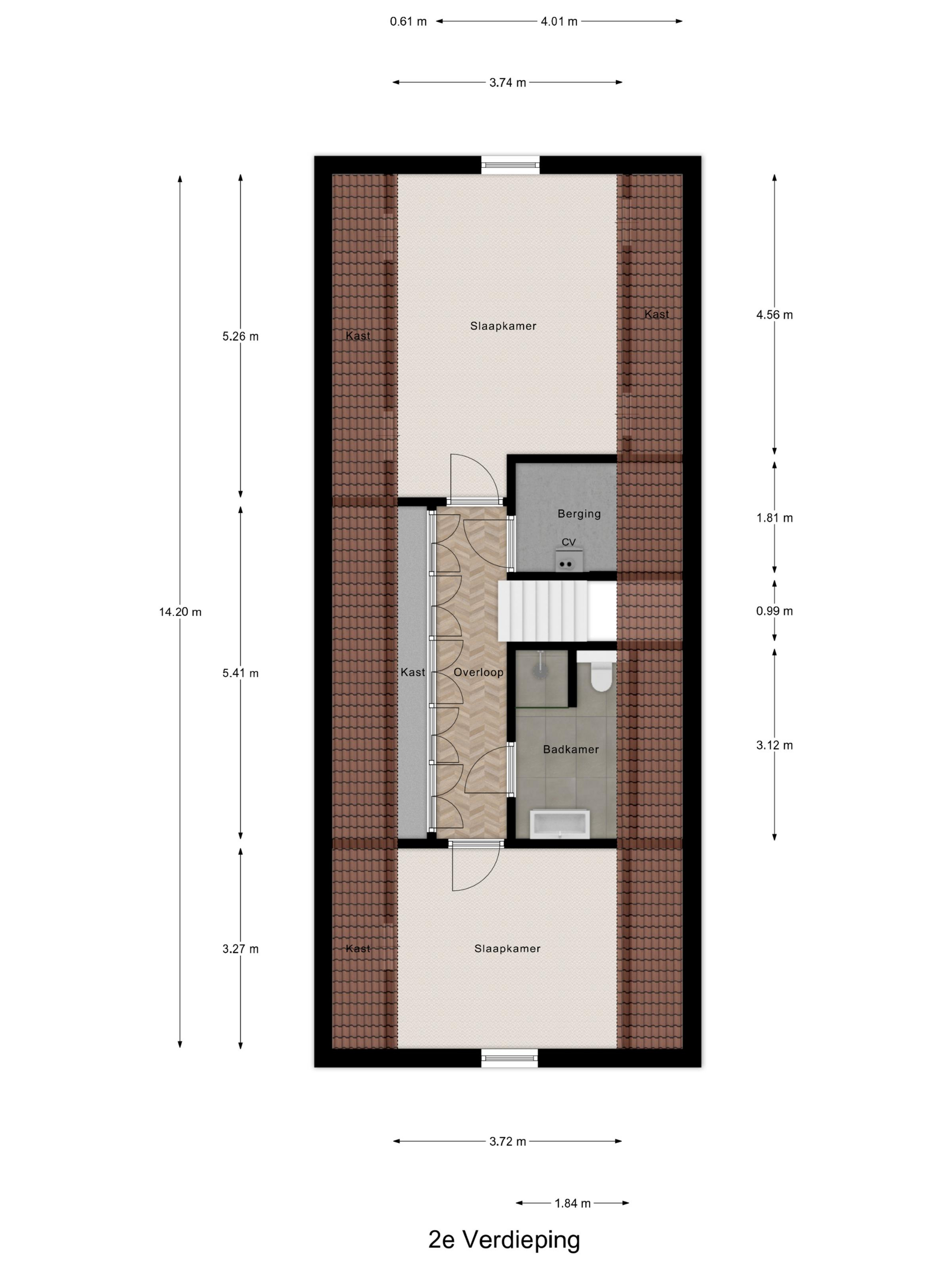
Tweede verdieping
Via de vaste trap, subtiel verlicht, bereikt u de tweede verdieping.
De overloop beschikt over een royale inbouwkastenwand met verrassend veel bergruimte. Ook hier zorgt de vloerafwerking in combinatie met vloerverwarming voor comfort en een rustige uitstraling.
Aan weerszijden bevinden zich twee ruime slaapkamers.
De kamer aan de voorzijde is praktisch ingericht met knieschotten en een op maat gemaakte bedombouw met geïntegreerd bureau, perfect voor een kind of tiener.
De kamer aan de achterzijde is licht en veelzijdig in gebruik, van slaapkamer tot werkruimte
en voorzien van een hoog knieschot aan één zijde.
Tussen de kamers in bevindt zich de derde badkamer. Ook hier is de afwerking in lijn met de rest van de woning: warme tinten, strakke lijnen en een rustige uitstraling. De badkamer is voorzien van een wastafel met meubel, een toilet en een douche.
Daarnaast is er nog een separate berging met de CV-opstelling.
Berging
Aan de linker zijkant van de woning treft u de berging. Deze is zowel aan de voor- als achterzijde voorzien van dubbele deuren, waardoor u hier moeiteloos met fietsen, tuinmeubilair of bijvoorbeeld een motor naar binnen rijdt.
Buitenleven
De voortuin is strak en verzorgd aangelegd en biedt u direct de mogelijkheid om op eigen terrein te parkeren. Een rustige, nette binnenkomer die perfect past bij de uitstraling van de villa.
De achtertuin is gelegen op het noordwesten en is zo gelegen dat ook de avondzon na een dag werken heerlijk in de tuin aanwezig is. De tuin is zo diep dat u de hele dag de zon in de tuin heeft staan.
Via de woonkamer, maar ook praktisch via de berging, stapt u een tuin in die met zorg en oog voor detail is ontworpen.
Direct aan de achterzijde van de villa vindt u een royaal terras. De achterpui, die u helemaal open kunt zetten, maken het waar dat de grens tussen binnen en buiten bijna vervaagt.
Verderop in de tuin vindt u meerdere zitplekken. Onder de stijlvolle overkapping geniet u van lange avonden, terwijl de zitkuil een echte eyecatcher vormt: een intieme plek waar u samenkomt, een goed glas wijn drinkt en de dag langzaam laat overgaan in de avond.
De tuin ligt aan doorgaand vaarwater richting het geliefde Duizend Eilandenrijk. U stapt zó van uw terras aan het water op, waar u in alle rust geniet van het uitzicht over de landerijen. Aan de steiger is plek voor een eigen boot
Als kers op de taart is er zelfs een buitendouche aanwezig. Heerlijk na een warme zomerdag of een frisse ochtendstart.
Tot slot
U woont hier in een jonge, ruim opgezette woonwijk waar rust, ruimte en water samenkomen. Een plek waar u het gevoel heeft er echt even uit te zijn, terwijl voorzieningen dichtbij zijn.
De wijk is modern en groen, met een prettige, rustige sfeer. U ervaart hier een fijne combinatie van nieuw wonen met een dorps karakter.
Met natuur, wandelroutes en water om de hoek én de nabijheid van Broek op Langedijk, Heerhugowaard en uitvalswegen richting Alkmaar, woont u hier precies goed. Even een rondje na het eten, een frisse ochtendwandeling of een fietstocht in het weekend… hier wordt dat vanzelf onderdeel van uw dag.
Interesse gewekt? U bent van harte welkom!
Kenmerken
· Vrijstaande, moderne villa met hoogwaardige afwerking
· Twee volwaardige woonlagen, ideaal voor dubbele bewoning of mantelzorg
· Slaapkamer met badkamer en-suite op de begane grond (levensloopbestendig)
· In totaal 4 slaapkamers en 3 badkamers
· Electrische horren voor en horren op maat gemaakt voor alle openslaande ramen
· Vlaggenmast. pakket brievenbus
· Prachtig aangelegde tuin met overkapping. Gelegen aan doorgaand vaarwater richting het Duizend Eilandenrijk
· Gelegen op een ruim perceel met parkeergelegenheid op eigen terrein
· Volledig voorzien van vloerverwarming
· Duurzaam en energiezuinig dankzij warmtepomp en 24 zonnepanelen
· Energielabel: A++, trippel glas
· Ook is het mogelijk om de erfpacht voort te zetten. Dit is 4000,00 euro per jaar dan is de vraagprijs 1.150.00,00 euro.
· Bouwjaar: 2023
· Gebruiksoppervlakte wonen: ca. 236 m²
· Overige inpandige ruimte: ca. 11 m²
· Bruto inhoud woning: ca. 915 m³
· Perceeloppervlakte: ca. 490 m²