
ZEER RUIME EN IN TOPSTAAT VERKEREND VRIJSTAANDE VILLA. INSTAPKLAAR!
Een huis met maar liefst 229 m2 woonruimte. Waar comfort en karakter samenkomen. Waar elke ruimte met zorg is ontworpen, en waar u merkt dat er aan álles is gedacht — van de slimme temperatuurregeling tot de warme uitstraling van de gashaard. Deze vrijstaande woning aan het Waterdrieblad biedt u niet alleen ruimte en rust, maar ook eigentijds wooncomfort met oog voor detail.
Dankzij het Honeywell Evohome-systeem regelt u per ruimte de gewenste temperatuur, terwijl het aanwezige alarmsysteem met doormelding zorgt voor een veilig gevoel, of u nu thuis bent of niet. En dat alles in een woning die uitblinkt in sfeer, licht en leefruimte — van de zonnige tuin tot de stijlvolle woonkamer waar het vuur zachtjes knispert.
Kortom: een woning die niet alleen mooi is om te zien, maar vooral heerlijk is om in te léven.
Kom binnen
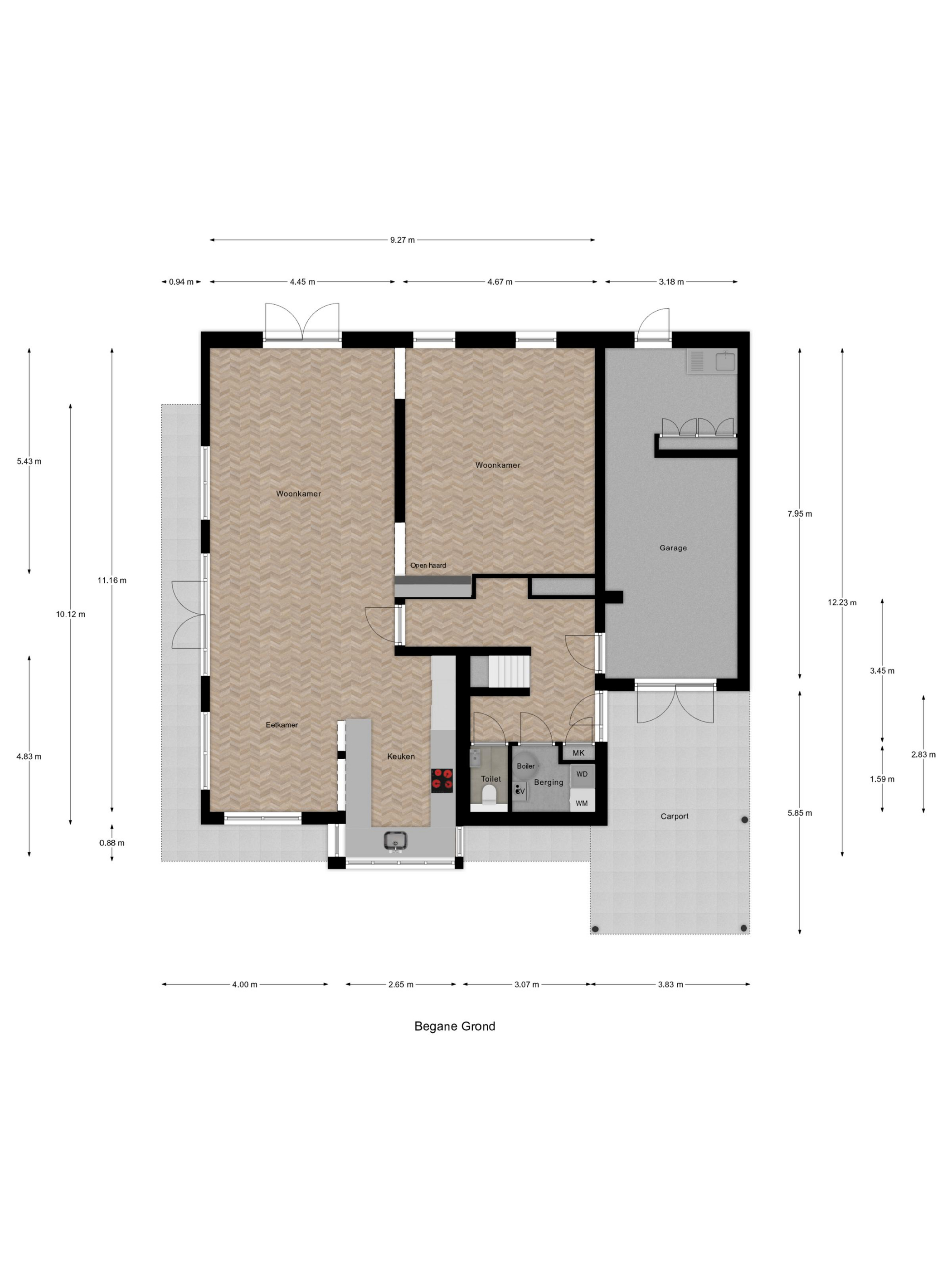
Zodra u de stijlvolle voordeur opent, voelt u het al: dit is een huis waar warmte, ruimte en sfeer elkaar moeiteloos vinden. De hal verwelkomt u met zachte kleuren, een prachtige stenen vloer met PVC laminaat voorzien van sierrand en strak gestucte wanden die meteen een verzorgde indruk maken. De lichtinval, het subtiele lijnenspel in de vloer en de open verbinding naar de woonkamer geven u direct het gevoel van thuiskomen. Vanuit de entree heeft u toegang tot het moderne toilet, de meterkast, de trapopgang naar de eerste verdieping, én de binnen doorgang naar de grote berging — praktisch en slim ingedeeld.
Woonkamer en keuken
Eenmaal binnen in de woonkamer ontvouwt zich een oase van licht en rust. Dankzij de grote raampartijen aan meerdere zijden baadt de ruimte in natuurlijk daglicht, waardoor het interieur nog ruimer aanvoelt. De vloer loopt naadloos door over de gehele begane grond, waar vloerverwarming met warm water zorgt voor een aangename basiswarmte, ongeacht het seizoen. Het geheel is strak afgewerkt en straalt rust en klasse uit — een interieur waar u zich direct thuis voelt.
De woonkamer is ruim, uitnodigend en heeft een heerlijk lichte uitstraling. Hier kunt u met gemak meerdere zithoeken creëren — een comfortabele plek om te ontspannen bij de televisie, een gezellige hoek voor een goed gesprek, of simpelweg een plek om te genieten van het uitzicht op de tuin. De openslaande deuren nodigen uit om het binnen leven moeiteloos te verlengen naar buiten: zodra de zon schijnt, zet u de deuren open en loopt u zó het terras op met een kop koffie of glas wijn in de hand.
Een bijzonder element op deze verdieping is de gashaard, centraal gepositioneerd tussen beide woonkamers. Dankzij deze slimme opstelling kunt u van het knisperende vuur genieten vanuit meerdere plekken in huis: zowel vanuit de woonkamer, de tweede zitkamer als de eetkamer en de hal. Het zorgt voor een warme, huiselijke sfeer — precies dat stukje charme dat een woning tot een echt thuis maakt.
Achter de haard bevindt zich de tweede woonkamer, momenteel ingericht als gezellige TV-kamer. Hier heerst een knusse, intieme sfeer waar ontspanning centraal staat. Dankzij de rustige kleuren, het vele licht en het directe contact met de tuin is dit een ruimte waar u zich direct op uw gemak voelt. Ideaal als familiekamer, speelkamer of thuiswerkplek — wat uw levensfase ook is, deze kamer groeit moeiteloos met u mee.
Grenzend aan de woonkamer ligt de eetkamer: royaal, sfeervol en met openslaande deuren naar de tuin. Het is zo’n ruimte waar u meteen een lange eettafel voor u ziet, gevuld met familie, vrienden, lekker eten en mooie gesprekken. Met de juiste verlichting en het licht dat door de ramen naar binnen valt, krijgt de ruimte een warme, uitnodigende sfeer — een plek waar u met gemak urenlang wilt blijven natafelen.
De halfopen keuken vormt het hart van de leefruimte — stijlvol, praktisch en verbonden met alles wat er in huis gebeurt. Terwijl u kookt, houdt u eenvoudig contact met uw gasten of gezinsleden. De keuken (Siematic) is uitgevoerd in een warme, tijdloze tint en voorzien van een schitterend werkblad van kalkzandsteen, 8 cm dik met een gebeitelde voorzijde.
Er is volop kastruimte, veel afzetruimte én alle denkbare inbouwapparatuur is aanwezig: een inductiekookplaat (2022), afzuigkap, 2x combi magnetron (2022), vaatwasser (2020) en koel-vriescombinatie. De raampartijen rondom zijn voorzien van witte shutters die zorgen voor een mooie balans tussen licht, privacy en sfeer.
’s Ochtends valt hier het eerste zonlicht binnen terwijl u geniet van een kop koffie, en ’s avonds kookt u met uitzicht op het groen rondom de woning. Alles aan deze begane grond ademt comfort, warmte en leefbaarheid — een plek waar elke dag moeiteloos overgaat in de volgende.
Eerste verdieping
Via de trapopgang bereikt u de eerste verdieping, waar rust en ruimte samenkomen. Zodra u boven komt, ervaart u direct de overzichtelijke indeling: vanuit de centrale overloop heeft u toegang tot drie ruime slaapkamers, de badkamer en een separaat toilet. Alles ademt hier dezelfde verzorgde sfeer en verfijnde afwerking die u ook op de begane grond al heeft ervaren – met strak gestuukte wanden, prettige lichtinval en een fijne balans tussen functionaliteit en comfort.
De masterbedroom aan de achterzijde is royaal van formaat en vormt een heerlijke plek om tot rust te komen. Dankzij de brede dakkapel baadt de kamer in het licht en biedt ze meer dan voldoende ruimte voor een groot bed én een zitje. De inbouwkledingkast loopt elegant over de volledige breedte en zorgt voor een zee aan opbergruimte zonder dat het interieur aan luchtigheid verliest.
De tweede slaapkamer is eveneens ruim opgezet en ideaal als kinderkamer of werkkamer. De speelse schuine kap en de dakkapel geven de ruimte karakter, terwijl de indeling zich eenvoudig laat aanpassen aan uw woonwensen. De derde slaapkamer is perfect voor een jong kind, logees of een creatieve invulling zoals een hobby- of studeerkamer — hier kunt u letterlijk alle kanten op.
De badkamer is een waar visitekaartje van deze verdieping. Volledig betegeld in warme aardetinten straalt de ruimte rust en luxe uit. De dubbele wastafel met bijpassend meubel en spiegelkast biedt volop ruimte voor een druk gezin, terwijl het diepe ligbad uitnodigt tot ontspannen na een lange dag. De ruime inloopdouche is voorzien van zowel een stort- als handdouche, en het geheel wordt stijlvol verlicht door subtiele plafondspots. Alles voelt doordacht, strak afgewerkt en tijdloos modern. Hier zorgt elektrische vloerverwarming voor dat extra vleugje comfort.
Het separate toilet op de overloop is in dezelfde stijl uitgevoerd, zodat de verdieping één harmonieus geheel vormt.
Tweede verdieping
Via de vaste trap bereikt u de tweede verdieping – een heerlijke extra ruimte die u naar eigen inzicht kunt benutten. Het schuine dak en het aanwezige dakraam zorgen voor een charmante, lichte uitstraling. Hier proeft u direct de veelzijdigheid van de woning: wat nu dienstdoet als zolder, kan met gemak transformeren tot een sfeervolle logeerkamer, rustige werkplek of studeerkamer.
Dankzij het dakraam valt er prettig daglicht binnen, waardoor de ruimte verrassend licht en uitnodigend aanvoelt. De schuine wanden creëren hoekjes, perfect om slim te benutten voor opbergruimte of een extra kastwand. En natuurlijk kunt u er ook gewoon een praktische berging van maken, waar koffers, seizoensspullen of sportmateriaal keurig uit het zicht worden opgeborgen.
Kortom, deze verdieping biedt precies die extra vierkante meters die een huis tot een écht thuis maken — flexibel, functioneel en klaar om met u mee te groeien.
Garage
Grenzend aan de woning en bereikbaar via zowel de hal als een eigen buitendeur onder de carport, bevindt zich een royale garage die verrassend veel mogelijkheden biedt. De ruimte is royaal van formaat en ideaal voor wie houdt van orde, overzicht en gemak.
Hier kunt u met gemak een werkbank plaatsen — de handige doe-het-zelver heeft er alle ruimte om lekker te klussen, materialen op te slaan of gereedschap overzichtelijk te bewaren. Dankzij het aanwezige keukenblok met spoelbak is het bovendien een fijne plek om (tuin)gereedschap schoon te maken of even de handen te wassen na een middag werken in de tuin.
De deur naar buiten is bijzonder praktisch wanneer u bezig bent met klussen of tuinieren: u loopt zo in en uit, zonder door de woning te hoeven gaan. Netjes afgewerkt, verwarmd en voorzien van elektra vormt deze berging een waardevolle aanvulling op het wooncomfort — een ruimte waar functionaliteit en gebruiksgemak samenkomen.
Buitenleven
Zodra u de openslaande deuren naar buiten opent, voelt u het meteen: dit is zo’n tuin waar u het hele jaar door van kunt genieten. Groen, rustig en besloten — een plek waar het buitenleven vanzelf onderdeel wordt van uw dag.
’s Ochtends valt het zonlicht zacht over de voortuin op het zuidoosten, terwijl u met een dampende kop koffie geniet van de eerste zonnestralen. De wereld ontwaakt langzaam, de vogels fluiten, en u voelt hoe de dag zich rustig ontvouwt. Later op de dag schuift u door naar de zij tuin op het westen, waar de zon tot laat blijft hangen en uitnodigt tot een gezellige borrel of een goed gesprek in het avondlicht.
De achtertuin, gelegen op het noordwesten, is royaal van opzet en biedt volop privacy dankzij de volgroeide hagen en beplanting. Hier kunt u ongestoord barbecueën met vrienden, loungen met een goed boek of de kinderen vrij laten spelen op het gras, terwijl de Gardena maairobot trouw zijn rondes rijdt en het gazon keurig bijhoudt. Ook aan praktisch gemak is gedacht: de aanwezige irrigatiecomputer (momenteel buiten gebruik) toont dat onderhoud hier moeiteloos verloopt.
De verschillende terrassen nodigen uit om telkens een ander plekje te kiezen — in de zon, in de schaduw, of juist beschut onder het groen. En dankzij de praktische achterom loopt u zo van straat naar tuin; ideaal in een dorp als Oudkarspel, waar buren en vrienden nog spontaan even langs wippen voor een bakkie koffie of een kletspraatje.
Ook aan de voorzijde is het comfortabel thuiskomen. Onder de carport parkeert u uw auto droog en beschut, en op eigen terrein is bovendien ruimte voor een tweede auto.
Of u nu houdt van tuinieren, buiten tafelen of gewoon genieten van de rust om u heen — deze tuin ademt ontspanning. Hier leeft u buiten, met elke dag een ander uitzicht, elke zonnestraal een uitnodiging om te blijven zitten, en elk seizoen zijn eigen charme.
Tot slot
Aan het Waterdrieblad woont u in een van de meest geliefde buurten van Oudkarspel — een plek waar het dorpsleven nog voelbaar is, maar waar alles tot in de puntjes verzorgd is. De straat ademt rust en ruimte: vrijstaande woningen met groene hagen, vogels die u ’s ochtends wekken en kinderen die met hun step de bocht om komen zoeven. Hier kent men elkaar bij naam en blijft men graag even staan voor een praatje, zonder dat het te kneuterig wordt.
Wat dit deel van Oudkarspel zo fijn maakt, is de balans tussen rust en bereikbaarheid. Binnen een paar minuten fietst u naar de supermarkt en wat meer richting het centrum van Zuid-Scharwoude treft u warme bakker, slager en andere dagelijkse voorzieningen. Scholen, kinderopvang en sportvelden liggen allemaal om de hoek — ideaal voor gezinnen die graag alles dichtbij willen hebben.
Ook natuurliefhebbers komen hier volop aan hun trekken. Het Diepsmeerpark ligt op steenworp afstand en het recreatiegebied Geestmerambacht ligt praktisch in de achtertuin; Beide zijn perfecte plekken voor een wandeling met de hond, een zomerse picknick of een rondje suppen op het water. En op de fiets of met de auto bent u zó in Heerhugowaard of Alkmaar, waar u kunt winkelen, dineren of een avondje naar de bioscoop gaat.
De ligging is bovendien gunstig voor forenzen: via de N245 en A9 bereikt u binnen korte tijd steden als Amsterdam, Haarlem of Hoorn, terwijl u thuis juist geniet van het ontspannen dorpsritme waar de tijd nog even lijkt stil te staan.
Kortom: wonen aan het Waterdrieblad is wonen in een omgeving waar alles klopt — groen, gemoedelijk en met een vleugje luxe.
Interesse gewekt? U bent van harte welkom.
Kenmerken
• Vrijstaande woning met carport en royale berging
• Bouwjaar 1997, in 2006 onder architectuur gerealiseerde uitbouw (1,5 meter) over de gehele breedte (achtergevel)
• Ruime, lichte woonkamer met grote raampartijen en sfeervolle gashaard
• Halfopen keuken met natuurstenen werkblad, inbouwapparatuur en shutters
• Royale eetkamer met openslaande deuren naar de tuin
• Tweede woonkamer, ideaal als TV-kamer, speelruimte of werkplek
• Vier slaapkamers, waarvan de master met brede dakkapel en inbouwkast
• Luxe badkamer met ligbad, inloopdouche (stort- en handdouche), dubbele wastafel en elektrische vloerverwarming
• Vloerverwarming met warm water op de gehele begane grond
• Honeywell Evohome-systeem (temperatuurregeling per ruimte)
• Issys alarmsysteem met doormelding (Honeywell)
• Praktische geisoleerde garage met keukenblok, verwarming, elektra en buitendeur
• Verzorgde tuin rondom en optimale zonligging
• Parkeren op eigen terrein, 2 auto’s
• Praktische achterom naar de tuin
• Nabij winkels, scholen, sportverenigingen en recreatiegebied Geestmerambacht
• Uitstekende bereikbaarheid richting Heerhugowaard, Alkmaar en Amsterdam
• Energielabel: B
• Bouwjaar: 1997
• Woonoppervlakte: ca. 229 m²
• Gebruiksoppervlakte gebouwgebonden buitenruimte (carport): ca. 21 m²
• Bruto inhoud woning: ca. 828 m³
• Perceeloppervlakte: ca. 476 m²